Detalhes Sanitários



Amigos, os detalhes sanitários servem de guia para o serviço de instalação das tubulações dentro dos ambientes, sejam banheiros, cozinhas, áreas de serviço.

A realização desse trabalho deve ser feita coma consulta ao detalhe a todo o momento porque o os detalhes fornecem as seguintes informações: tipo de tubulação, tipo de conexão, dimensões, diâmetro, posição dos pontos, altura em relação ao solo, localização de registros.

Os detalhes sanitários se dividem em dois: detalhes de água e detalhes de esgoto.

Detalhe Instalações de Água

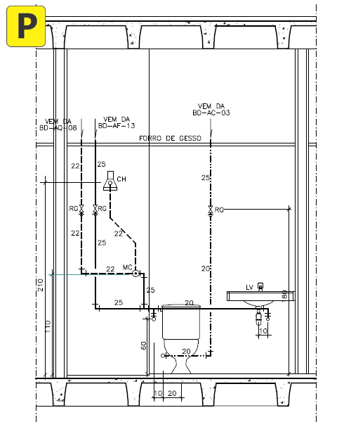
Os detalhes de instalações de água contemplam todas as formas de água em conjunto, seja água fria, água quente e água de reuso.

Eles podem ser representados em perspectiva ou uma elevação de cada parede. Nosso exemplo é elevação de parede.

Na imagem abaixo a água fria está representada por linhas contínuas ( __________ ), a água quente em linha traço-ponto ( _ . _ . _ . _ ) e a água de reuso em linha traço/dois pontos ( _ .. _ .. _ .. _ );

A partir dessa elevação que será feito o corte na parede para passagem de tubulação, no caso de paredes de alvenaria de vedação, separar o material que será utilizado de acordo com as especificações e fazer o corte dos tubos.

Macete 01: Edificações com estrutura autoportante não podem ter rasgos horizontais nem verticais nas paredes!

Veja a posição das peças sanitárias, dos registros de gaveta, os diâmetros das tubulações, os pontos de água, o local de passagem dos tubos. O projeto de detalhe deve ser seguido fielmente durante a execução da atividade.



Detalhe Instalações de Esgoto

Os detalhes de esgoto mostram como devem ser feitas as instalações das tubulaçoes de acordo com a posição das peças sanitárias. As conexões são numeradas para seja consultada a planilha do tipo exato de peça a ser utilizada. No exemplo abaixo veja o sentido de caimento do esgoto, a posição da caixa sifonada, o tudo de queda no shaft, ralo, etc.

Lembre-se que os esgotos tem o tubo de ventilação de esgoto primário (vaso sanitário). Esse assunto será abordado em um próximo post.





Sempre siga os detalhes sanitários na hora de fazer as instalações, sem deixar de consultar o projeto geral que mostra todo o caminhamento das tubulações de água e esgoto.